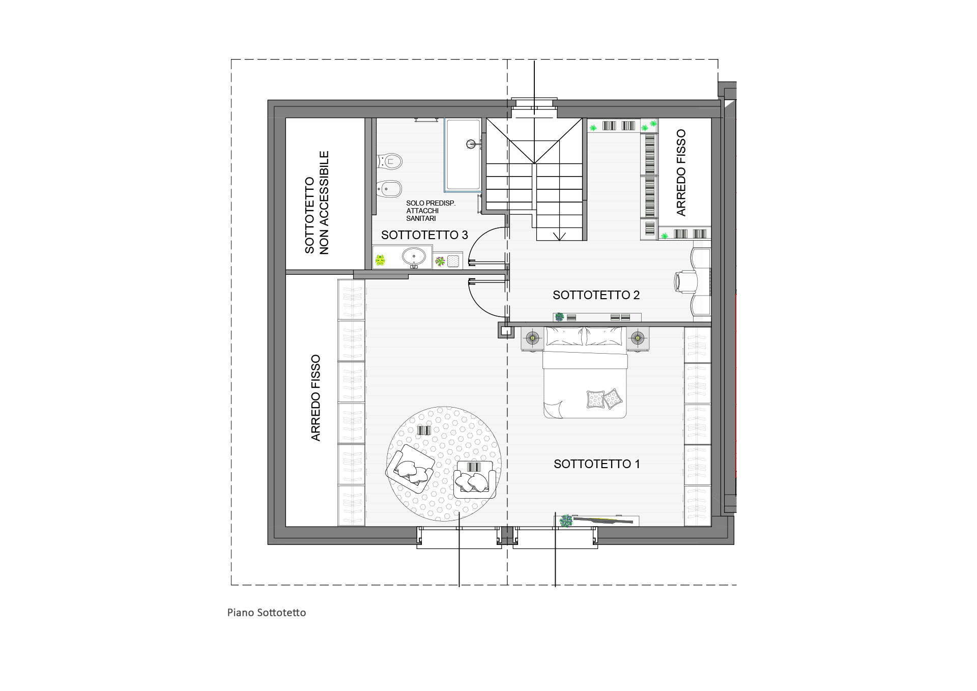
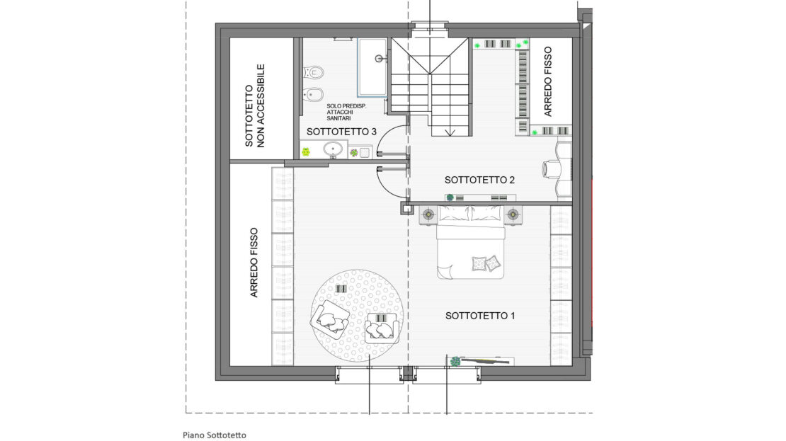
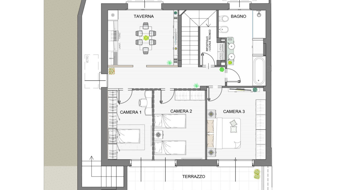
Sulla sommità di una collina panoramica, sorge una villa di lusso realizzata in adiacenza all’altra, con strutture indipendenti, circondata da un ampio giardino di circa 770 mq affacciato sul Lago di Como.
Questa proprietà completamente autonoma rappresenta una rara opportunità di vivere in un ambiente raffinato, con spazi ampi e luminosi, finiture di alta gamma e tecnologie di ultima generazione con irrisori costi di manutenzione e riscaldamento.
Caratteristiche principali:
– Nuova costruzione in corso di finitura
– Classe energetica A2;
– Cappotto esterno da 16 cm;
– Tetto coibentato con isolamento termo-acustico da 16 cm;
– Canali e pluviali in rame;
– Muri esterni di contenimento in sasso a vista;
– Serramenti in legno-alluminio;
– Frangisole e avvolgibili elettrici in alluminio;
– Riscaldamento autonomo con pompa di calore;
– Impianto fotovoltaico;
– Predisposizione per impianto antifurto perimetrale interno ed esterno;
– Finiture interne di alta qualità, senza costi aggiuntivi, a scelta del cliente e visionabili presso il nostro showroom di Dongo;
– Vendita diretta, senza provvigioni!
– Garanzia in aggiunta oltre a quella della ditta costruttrice, con assicurazione postuma decennale su strutture.
Questa soluzione è ideale come prima o seconda casa, progettata per durare nel tempo e offrire un eccellente rapporto qualità/prezzo, in una zona tranquilla e soleggiata
La consegna è prevista entro 2 mesi dalla firma della promessa d’acquisto, tempo necessario per la scelta e l’installazione delle piastrelle e delle porte interne
Contattaci oggi stesso per ulteriori informazioni o prenotare una visita!





Utilizza il modulo sottostante per contattarci!


















