A pochi passi dalle splendide rive del Lago di Como, nel cuore di Tremezzo, proponiamo in vendita tre esclusive ville moderne e indipendenti, attualmente in fase di costruzione, inserite in un contesto riservato, soleggiato e panoramico
Posizione particolarmente strategica: le proprietà si trovano a circa 300 metri dal lago e dalla celebre Greenway del Lago di Como, uno dei percorsi pedonali più affascinanti della zona, ideale per passeggiate immerse nella natura tra borghi storici, ville d’epoca e scorci mozzafiato sul lago
Tremezzo rappresenta una delle località più richieste del Lago di Como grazie al suo fascino autentico, ai servizi facilmente raggiungibili e alla vicinanza a ristoranti, caffè, imbarcadero, supermercati, spiagge e collegamenti verso Como, Menaggio, Colico e Lugano
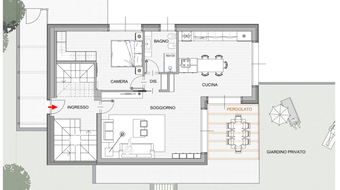
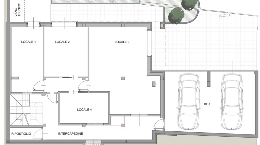
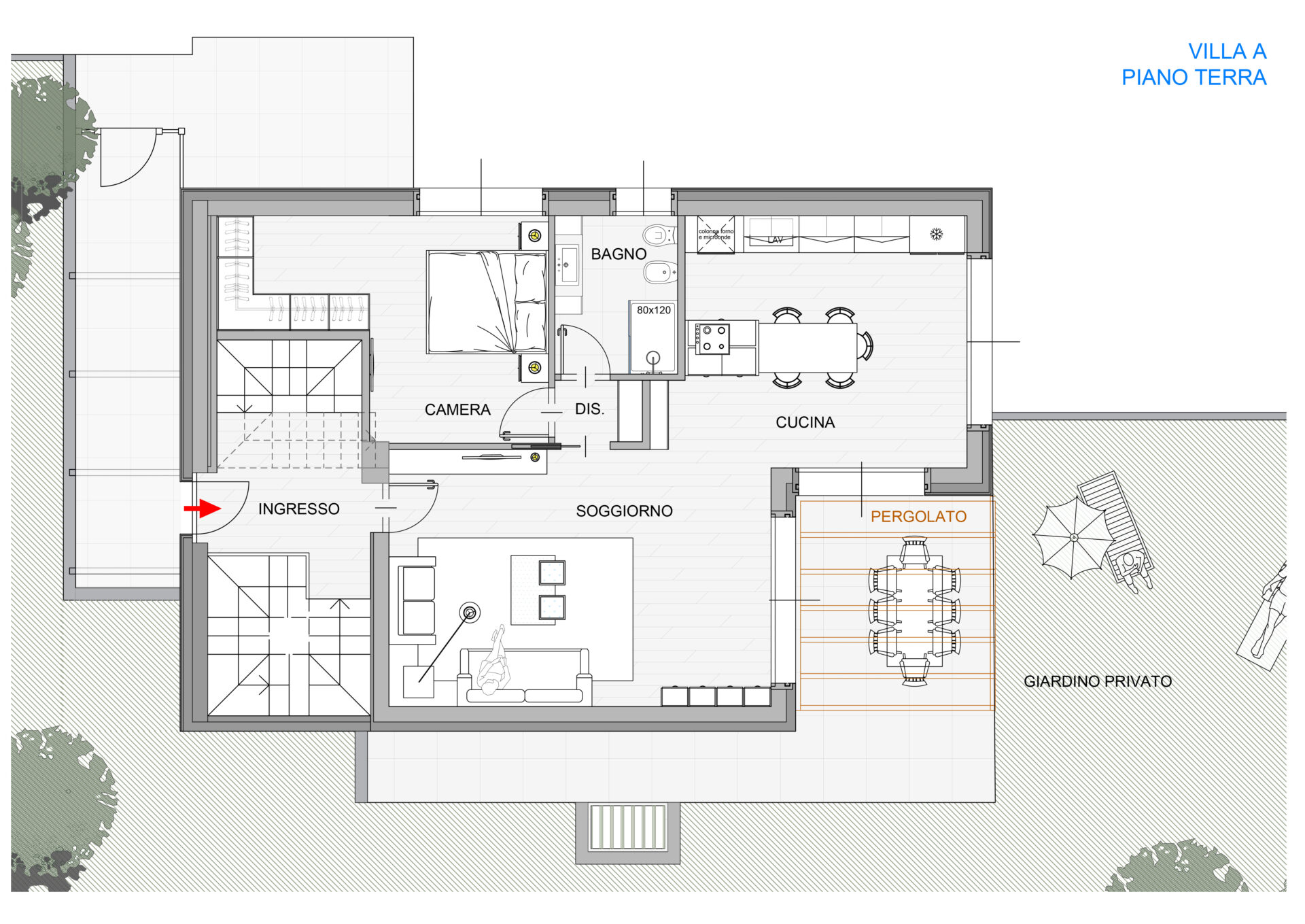
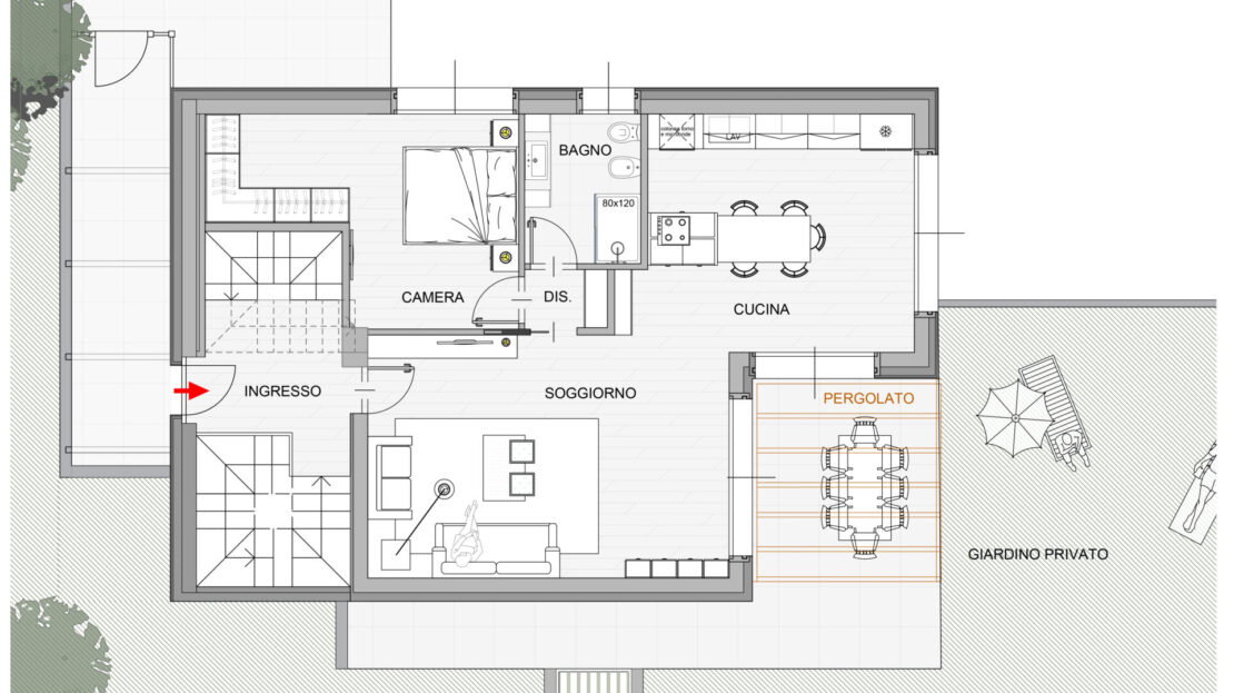
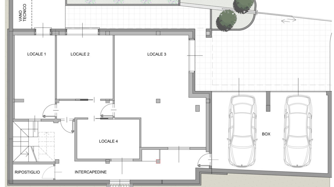
Le ville sono state progettate con grande attenzione al design contemporaneo, alla funzionalità degli spazi e al comfort abitativo, con finiture di altissimo livello e tecnologie costruttive all’avanguardia. Ogni unità si sviluppa su tre livelli: piano terra, piano interrato con box auto e piano sottotetto, oltre ad offrire un generoso spazio esterno
Caratteristiche principali della nuova costruzione:
Le finiture ricercate, l’elevata qualità dei materiali, la possibilità di personalizzazione degli interni e la posizione esclusiva, rendono queste ville un’opportunità unica sul mercato immobiliare del Lago di Como. Ideali sia come abitazione principale sia come investimento di prestigio o residenza per le vacanze
Attualmente sono ancora disponibili solamente:
Per maggiori informazioni, brochure o per organizzare una visita in loco, siamo a vostra completa disposizione!
Utilizza il modulo sottostante per contattarci!
















