A soli 300 metri circa dalle rive del Lago di Como, in posizione riservata e panoramica, proponiamo in vendita tre ville moderne e indipendenti, attualmente in fase di costruzione. Le ville sono state progettate con grande attenzione al design, alla funzionalità e al comfort abitativo.
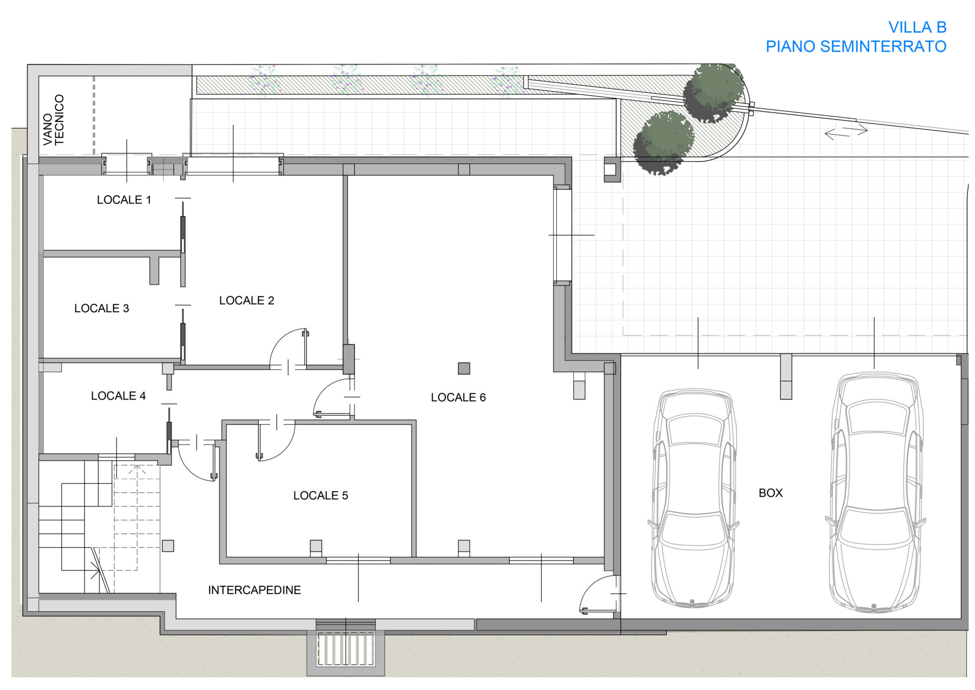
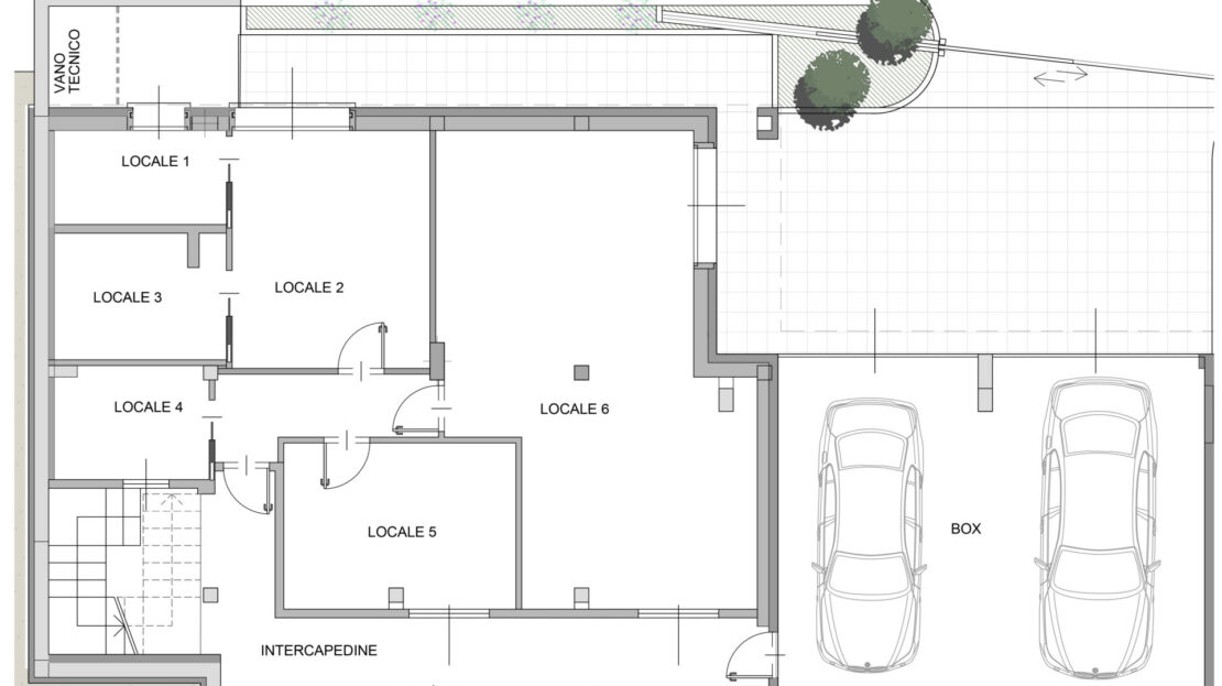
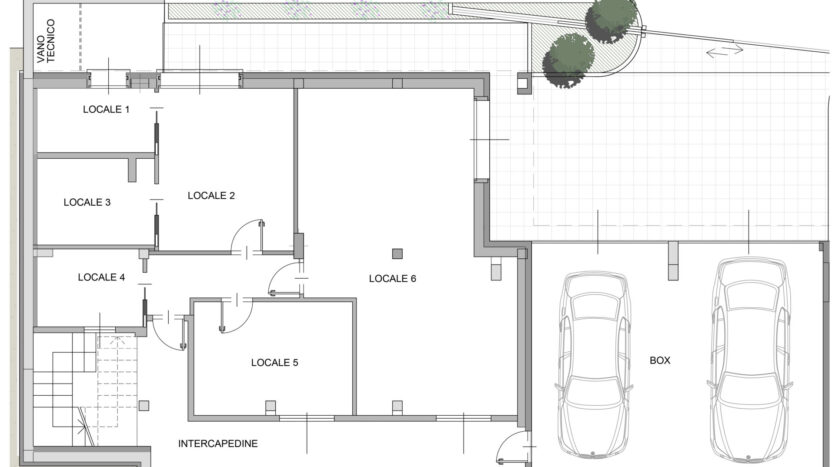
Ogni villa si sviluppa su tre livelli. Di seguito la disposizione della Villa B:
Piano terra: Ingresso, ampio e luminoso soggiorno con cucina, camera matrimoniale, disimpegno, bagno e portico con pergolato che collega armoniosamente gli spazi interni all’area esterna con vista lago
Piano seminterrato: Cinque locali luminosi, ideali per diverse destinazioni d’uso.
Box doppio con accesso comodo tramite rampa a pendenza minima.
Piano sottotetto: Un ampio e luminoso open space con bagno, perfetto come studio o spazio hobby, con accesso diretto a un grande solarium panoramico, ideale per momenti di relax all’aperto con vista.
Caratteristiche costruttive e impiantistiche della nuova costruzione:
– Classe energetica A4
– Pareti ventilate in gres porcellanato
– Tetto coibentato con isolamento termo-acustico da 20 cm
– Isolamento delle pareti esterne da 16 cm
– Serramenti in legno-alluminio
– Frangisole elettrici in alluminio
– Riscaldamento a pavimento con pompa di calore
– Impianto fotovoltaico
– Copertura del tetto, canali e pluviali in acciaio inox
– Aria condizionata
– Box doppio con credito d’imposta del 50% sul costo di costruzione
– Finiture interne di altissima gamma, personalizzabili presso il nostro showroom di Dongo
– Possibilità di realizzare una piscina privata e/o usufruire di un’ampia piscina condivisa con altre 6 unità
– Vendita diretta senza intermediazione
– Nessuna spesa condominiale
– Consegna prevista entro 6 mesi dalla sottoscrizione della promessa di vendita
Le ville sono progettate e realizzate secondo i più elevati standard di qualità e di efficienza energetica, con soluzioni tecnologiche avanzate che garantiscono consumi ridotti e massimo benessere abitativo in ogni stagione. Ideali sia come prima casa che come seconda.
Le finiture di pregio, i materiali di alta qualità, la possibilità di personalizzare gli spazi interni, e la posizione strategica, immersa nella tranquillità ma vicina a tutti i servizi e principali collegamenti, rendono queste proprietà un investimento sicuro e un’opportunità unica per chi desidera una residenza esclusiva sul Lago di Como.
Attualmente sono ancora disponibili la Villa A e la Villa B.
Per ulteriori informazioni o per prenotare una visita in loco, siamo a vostra completa disposizione!
Utilizza il modulo sottostante per contattarci!














