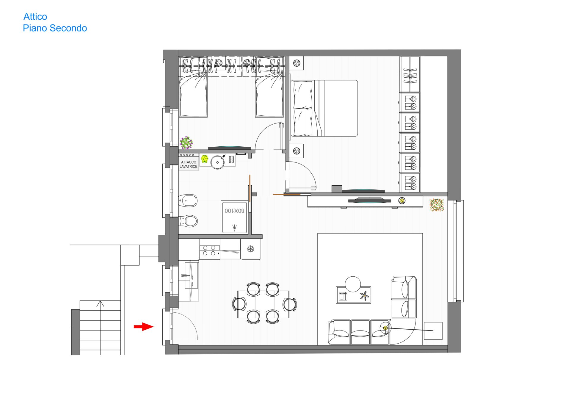
Attualmente disponibili due Attici IN PRONTA CONSEGNA in una nuova palazzina, pensati per chi cerca un’abitazione moderna e funzionale. Questi due appartamenti si trovano al secondo piano e offrono soluzioni versatili per ogni esigenza, con spazi ben distribuiti e luminosi. La nuova costruzione, di alta qualità e progettata per l’efficienza energetica, offre comfort e tecnologia all’avanguardia, con finiture eleganti e materiali di pregio. Situata in una zona tranquilla, ben servita e ben collegata.
La nuova costruzione avrà le seguenti caratteristiche:
– Nuova costruzione
– Classe energetica A2;
– Ascensore;
– Cappotto esterno da 14 cm;
– Tetto coibentato con isolamento termo-acustico da 16 cm;
– Canali e pluviali in acciaio;
– Serramenti in legno-alluminio;
– Frangisole e avvolgibili elettrici in alluminio;
– Riscaldamento con pompa di calore;
- Impianto fotovoltaico;
– Predisposizione per impianto antifurto perimetrale interno ed esterno;
– Finiture interne di alta qualità, senza costi aggiuntivi, a scelta del cliente e visionabili presso il nostro showroom di Dongo;
– Disponibilità di box privato (con credito d’imposta del 50% sul costo di costruzione per acquisto prima casa).
– Vendita diretta, senza provvigioni!
– Comodamente accessibile per persone con mobilità ridotta
– La consegna è prevista entro due mesi dalla firma della promessa d’acquisto
Questa soluzione è ideale come prima casa, progettata per durare nel tempo e offrire un eccellente rapporto qualità/prezzo.
Per fornire un’idea dell’efficienza energetica della costruzione, si consideri che, in appartamenti con caratteristiche e dimensioni simili nella stessa palazzina, il costo complessivo per il riscaldamento e l’acqua calda annui ammonta da euro 600 a 900.
Non esitate a contattarci per ulteriori informazioni! Siamo a vostra disposizione per rispondere a tutte le vostre domande e, se lo desiderate per organizzare un incontro presso i nostri uffici o in loco!
Utilizza il modulo sottostante per contattarci!







