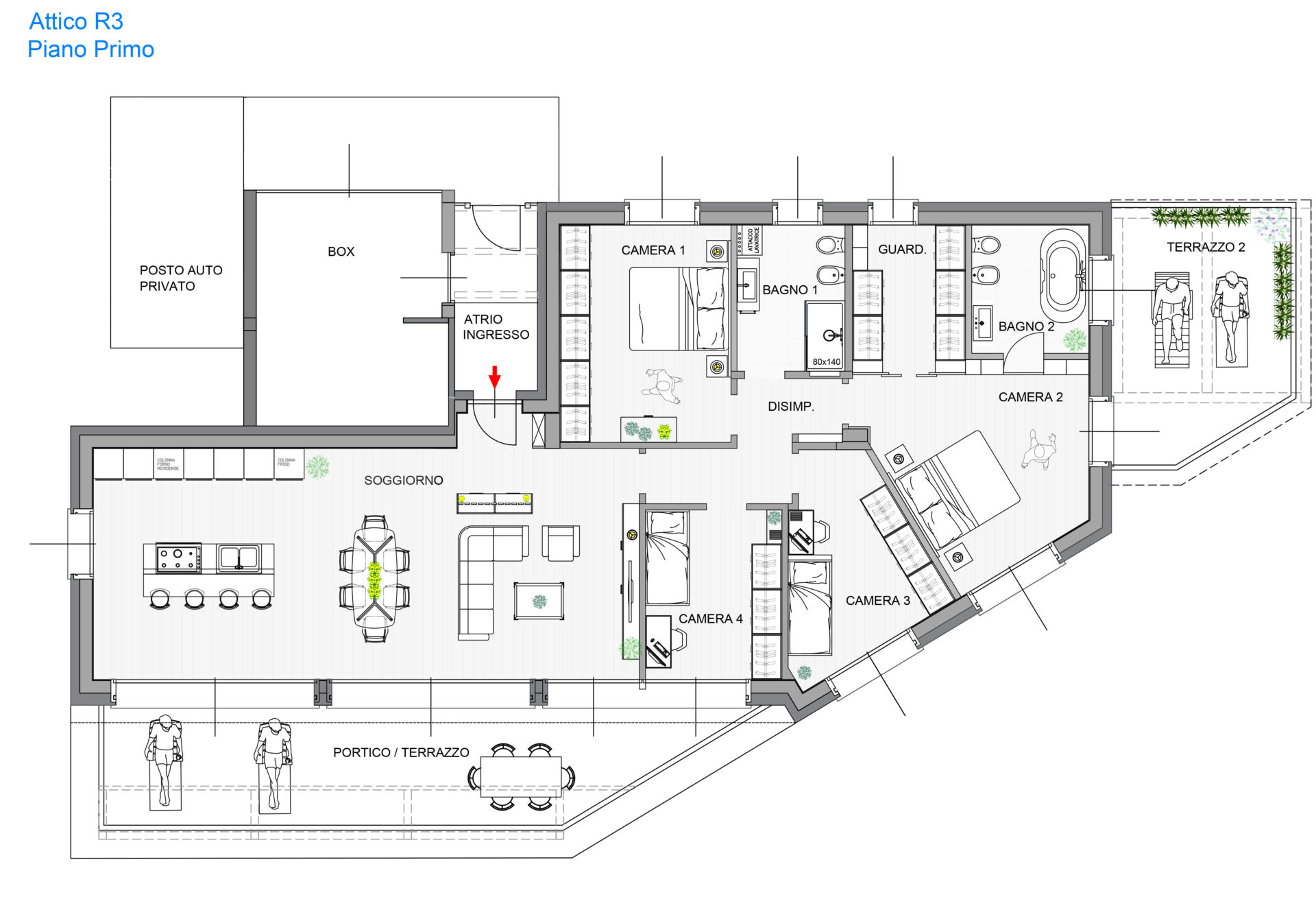
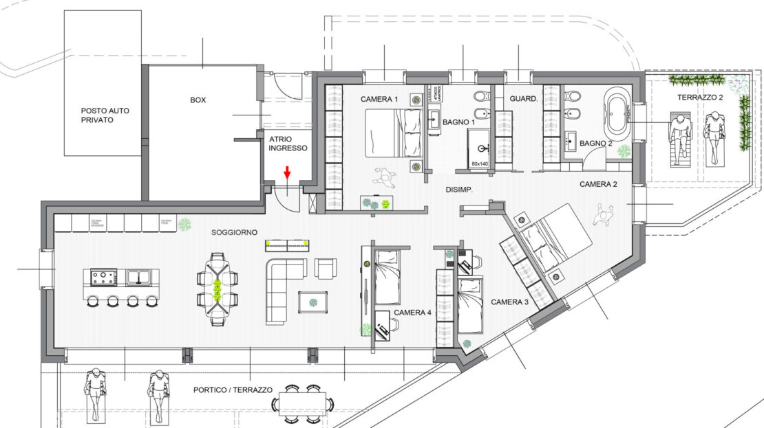
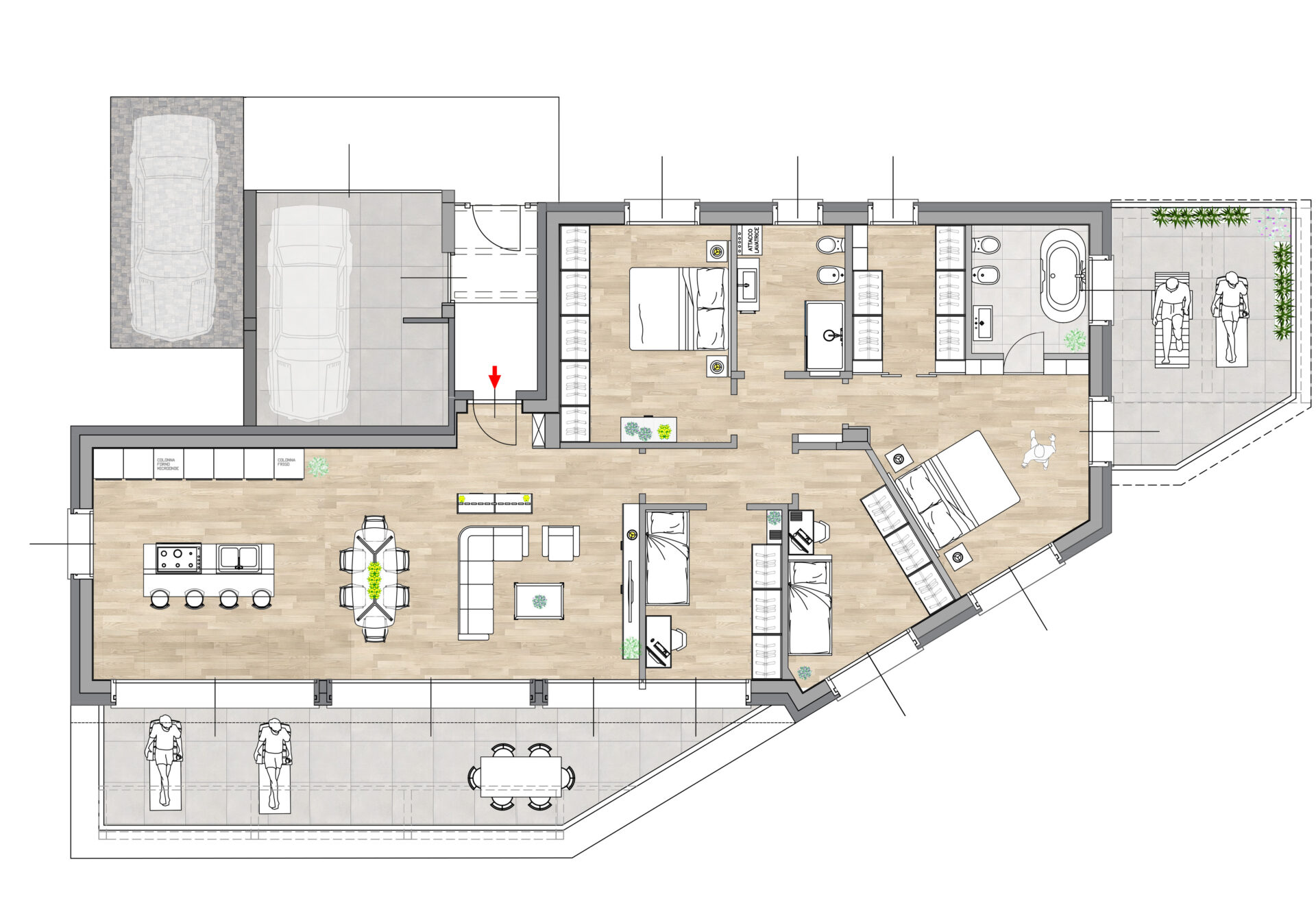
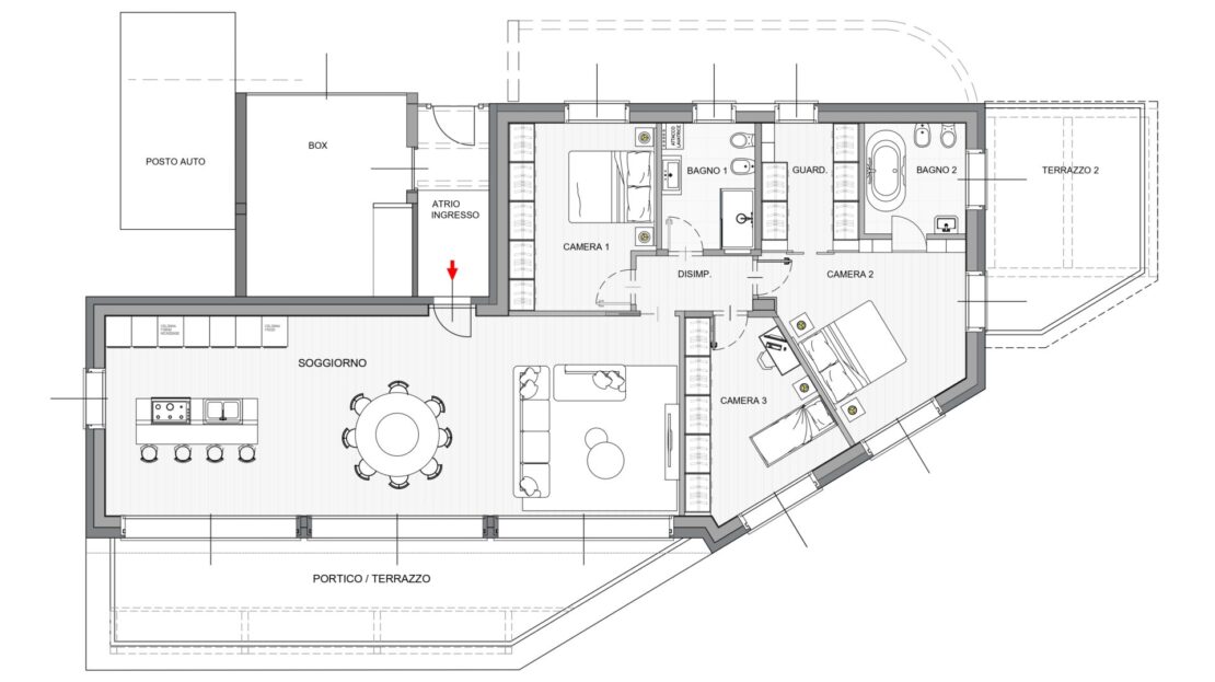
A Carlazzo in via Provinciale, è in fase di ultimazione una nuova palazzina composta da soli 3 appartamenti. La zona è ben servita, soleggiata e molto tranquilla. Il progetto si distingue per l’innovazione e l’elevata qualità costruttiva, ed è stato progettato per garantire il massimo del comfort, con particolare attenzione all’efficienza energetica e alla sostenibilità ambientale.
La nuova costruzione avrà le seguenti caratteristiche:
– Classe energetica A3;
– Grandi portici privati e giardini;
– Isolazione esterna pareti perimetrali da 18 cm;
– Tetto coibentato con isolamento termo-acustico da 20 cm;
– Canali e pluviali in acciaio;
– Muri esterni di contenimento in sasso a vista;
– Serramenti in legno-alluminio;
– Frangisole e avvolgibili elettrici in alluminio;
– Riscaldamento autonomo con pompa di calore;
– Impianto fotovoltaico autonomo
– Predisposizione per impianto antifurto perimetrale interno ed esterno;
– Finiture interne di design di altissima qualità, a scelta del cliente e visionabili presso il nostro showroom di Dongo;
– Disponibilità di box privato
– Vendita diretta dal costruttore, senza provvigioni!
– Comodamente accessibile per persone con mobilità ridotta (sia dalla strada che all’interno della abitazione)
– La consegna è prevista per fine anno 2026
– Assicurazione postuma decennale su: strutture, muri di tamponamento verticali esterni, sistemi di rivestimenti cappotto, impermeabilizzazioni copertura tetto, pavimenti interni ed esterni, intonaci e rivestimenti esterni dell’edificio.
Una soluzione ideale come prima o seconda casa, progettata per durare nel tempo e realizzata da ditta con esperienza quarantennale, in una zona riservata ma ben collegata, vicino a tutti i principali servizi e mezzi di trasporto.
Ad oggi è disponibile l’ appartamento situato al piano primo
Contattaci subito per ulteriori informazioni! Siamo a vostra disposizione per rispondere a tutte le vostre domande e, se lo desiderate per organizzare un incontro presso i nostri uffici o in loco!

Utilizza il modulo sottostante per contattarci!





