In der Gemeinde Carlazzo entsteht ein neues Wohngebäude mit nur drei Wohnungen. Die Lage ist gut angebunden, sonnig und sehr ruhig.
Das Projekt zeichnet sich durch innovative Architektur und eine hochwertige Bauausführung aus und wurde so konzipiert, dass es maximalen Wohnkomfort bietet – mit besonderem Augenmerk auf Energieeffizienz und Umweltverträglichkeit.
Die Neubau wird folgende Merkmale aufweisen:
– Energieklasse A3;
– Große private Veranden und Gärten;
– Außendämmung der Außenwände mit 18 cm;
– Dachdämmung mit 20 cm Wärme- und Schalldämmung;
– Dachrinnen und Fallrohre aus Stahl;
– Außenstützmauern aus Sichtstein;
– Fensterrahmen aus Holz-Aluminium;
– Elektrische Aluminium-Sonnenschutzanlagen und Rollläden;
– Autonome Heizung mit Wärmepumpe;
– Eigenständige Photovoltaikanlage;
– Vorbereitung für Innen- und Außenalarmanlage;
– Hochwertige designorientierte Innenausstattung, wählbar vom Kunden und in unserem Showroom in Dongo einsehbar;
– Verfügbarkeit von privater Garage;
– Direktverkauf vom Bauträger, ohne Maklerprovision!
– Barrierefreier Zugang, sowohl von der Straße als auch innerhalb der Wohnung;
– Geplante Fertigstellung Ende 2026;
– Zehnjährige Nachhaftungsversicherung auf: Tragwerke, äußere vertikale Trennwände, Wärmedämmverbundsysteme, Dachabdichtungen, Innen- und Außenböden, Putz und Fassadenverkleidung.
Eine ideale Lösung als Erst- oder Zweitwohnsitz,
geplant für langfristige Werterhaltung und gebaut von einem Unternehmen mit über 40 Jahren Erfahrung – in ruhiger, aber gut angebundener Lage, in der Nähe aller wichtigen Dienstleistungen und Verkehrsmittel.
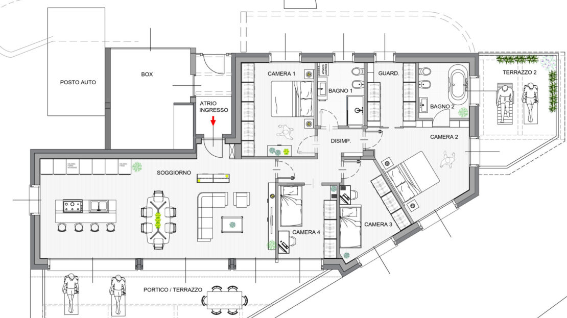
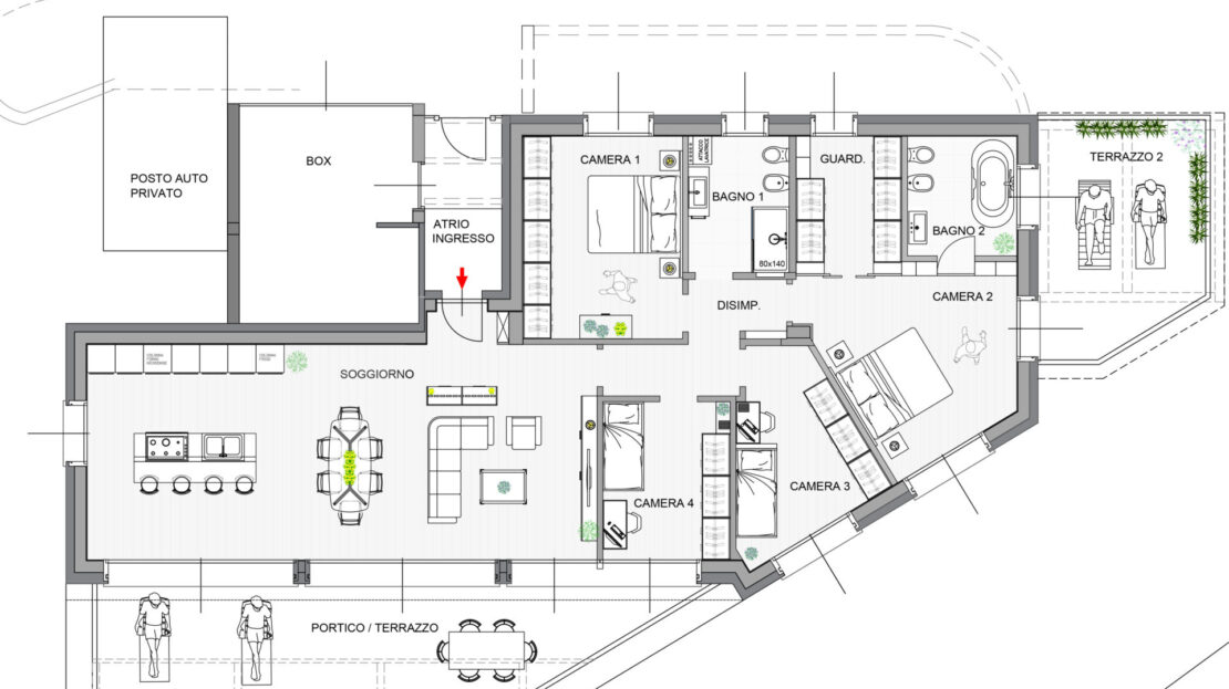
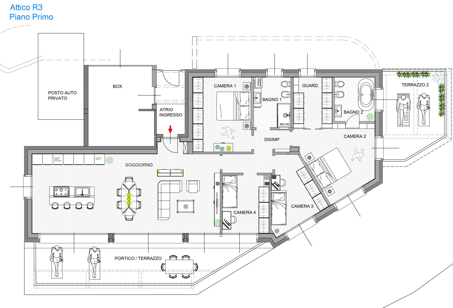
Im Gesamtprojekt sind derzeit verfügbar:
eine Wohnung im ersten Obergeschoss
Kontaktieren Sie uns noch heute für weitere Informationen!
Wir stehen Ihnen gerne zur Verfügung, um alle Ihre Fragen zu beantworten oder – wenn Sie wünschen – einen Termin in unserem Büro oder direkt vor Ort zu vereinbaren!

Benutzen Sie das folgende Formular um uns zu kontaktieren!



